Verkocht onder voorbehoud
Verkocht onder voorbehoud: Royale woning op riant perceel met berging en grote veranda!
De Zandvoort 5, 6669 ML Dodewaard
€ 450.000,- k.k.
Beschrijving
Landelijk wonen met comfort, karakter en uitzicht — een instapklare woning met ongekende mogelijkheden!Sommige huizen moet je zelf ervaren om ze echt op waarde te kunnen schatten — dit is er zo één.
Een verrassend royale, instapklare woning met 146 m² woonoppervlakte, gelegen op een fraai perceel van 510 m² eigen grond in het rustige buitengebied tussen Opheusden, Dodewaard en Zetten.
Hier geniet je van ruimte, vrijheid en uitzicht, terwijl alle voorzieningen toch binnen handbereik zijn.
De ligging is uniek: aan de voorzijde heb je een blijvend vrij uitzicht over weilanden en landerijen, achter de woning ligt een royale tuin met volop privacy en daarnaast mag er een extra stuk grond kosteloos worden gebruikt – ideaal voor tuinieren, hobby’s of opslag.
Zelfs de toegangsweg voor het huis is eigendom van de drie woningen samen: rustig, veilig en zonder doorgaand verkeer.
Via de ruime hal/entree aan de voorzijde betreed je de woning.
Hier vind je de trap naar de verdieping, een vernieuwd toilet, een trapkast, compleet vernieuwde meterkast en toegang tot de lichte living aan de zuidzijde.
Grote ramen laten de zon rijkelijk binnen en bieden prachtig zicht op het omliggende groen.
Op koelere dagen zorgt de sfeervolle haardkachel voor behaaglijke warmte en extra gezelligheid.
Aansluitend vind je een praktische speelkamer, die uiteraard ook perfect dienst kan doen als thuiswerkplek of hobbyruimte.
Via een speelse doorgang kom je in de ruime woonkeuken – een echte eyecatcher van deze woning.
Wat een enorme ruimte!
Hier is plek genoeg voor een eettafel van acht personen of meer, ideaal voor lange avonden tafelen met familie en vrienden.
De keuken is in 2024 volledig vernieuwd en uitgevoerd in een lichte, moderne stijl met hoogwaardige inbouwapparatuur: inductiekookplaat, afzuigkap, vaatwasser, combi-oven en koelkast.
De lichtstraat zorgt voor prachtig daglicht van bovenaf – een stijlvolle en praktische toevoeging.
De gehele begane grond is voorzien van vloerverwarming, wat zorgt voor een aangenaam en energiezuinig leefklimaat.
Naast de keuken bevindt zich de bijkeuken met schuifkastenwand, aansluitingen voor wasmachine en droger, een uitstortgootsteen en een deur naar de tuin – ideaal voor het dagelijks gemak.
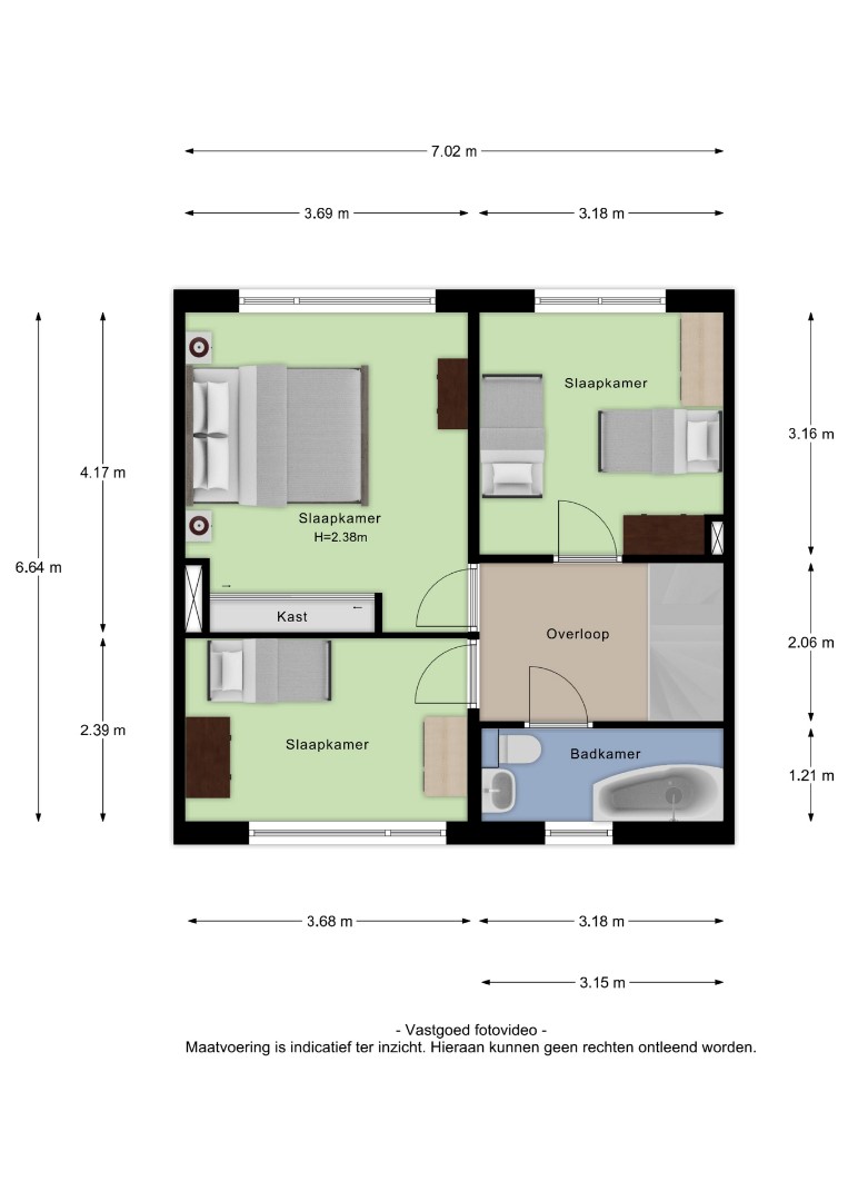
Op de eerste verdieping bevinden zich drie mooie slaapkamers en een lichte badkamer met ligbad, toilet en wastafel.
Via een vaste trap bereik je de tweede verdieping.
Hier is een grote vierde slaapkamer met dakkapel en dakvenster, wat zorgt voor veel licht en ruimte. Daarnaast is er nog een vijfde (slaap)kamer – ideaal als kinderkamer, logeerruimte of werkkamer.
De gehele woning is uitgevoerd met kunststof kozijnen en HR++ beglazing, wat zorgt voor uitstekend onderhoudsgemak en isolatie.
Buitenleven in volle glorie!
De achtertuin is een oase van rust en privacy – een plek waar je het hele jaar door kunt genieten van het buitenleven.
Hier vind je een grote nieuwe berging, een ruime veranda met tweede berging én een handige poort naar de achterzijde.
Achter de tuin ligt nog een extra stuk grond dat om niet gebruikt mag worden; ideaal voor parkeren, opslag, tuinieren of hobbydoeleinden.
Of je nu groene vingers hebt, dieren wilt houden of gewoon graag buiten bent: hier is ruimte in overvloed.
De woning ligt in het landelijke buitengebied tussen Opheusden, Dodewaard en Zetten/Hemmen – elk op slechts circa 3 kilometer afstand en dus ook goed te fietsen.
Alle dagelijkse voorzieningen, scholen, winkels en sportverenigingen zijn binnen handbereik.
Dankzij de gunstige ligging nabij de A15 zijn steden als Wageningen, Tiel, Nijmegen en Arnhem uitstekend bereikbaar.
Aandachtspunten:
Woonoppervlakte: ca. 146 m²
Perceel: 510 m² eigen grond + extra grond in gebruik
Vrij uitzicht aan de voorzijde
Instapklaar en uitstekend onderhouden
Grote uitbouw (2009) met royale woonkeuken (2024 vernieuwd)
Vloerverwarming op de begane grond
5 mooie slaapkamers
Kunststof kozijnen met HR++ glas
2 bergingen + grote veranda
Rustige ligging in het buitengebied tussen drie dorpen
Eigen toegangsweg in gezamenlijk eigendom
Hier begint het buitenleven!
Ben jij iemand die houdt van rust, ruimte en een vrij gevoel?
Die graag buiten leeft, maar ook waarde hecht aan comfort en kwaliteit?
Dan is dit jouw kans.
Kom kijken, voel de ruimte en ervaar de sfeer — dit huis vertelt zijn verhaal pas echt als je er doorheen loopt.
Bent u gecharmeerd van deze leuke woning en ziet u zichzelf hier al wonen?
U kunt een bieding uitbrengen vanaf € 450.000,= k.k.
Kenmerken
| Overdracht | |
|---|---|
| Referentienummer | 8087/8763783 |
| Koopsom | € 450.000,- k.k. |
| Status | Verkocht onder voorbehoud |
| Aangeboden sinds | Dinsdag 14 oktober 2025 |
| Laatste wijziging | Donderdag 30 oktober 2025 |
| Bouw | |
|---|---|
| Type object | Woonhuis, tussenwoning, eengezinswoning |
| Soort bouw | Bestaande bouw |
| Bouwjaar | 1968 |
| Type dak | Overige |
| Isolatievormen | Dakisolatie Muurisolatie Vloerisolatie |
| Oppervlaktes en inhoud | |
|---|---|
| Breedte | 7,3 m. |
| Lengte | 45 m. |
| Perceeloppervlakte | 510 m² |
| Woonoppervlakte | 146 m² |
| Inhoud | 492 m³ |
| Tuinoppervlakte | 360 m² |
| Indeling | |
|---|---|
| Aantal bouwlagen | 3 |
| Aantal kamers | 7 (waarvan 5 slaapkamers) |
| Aantal badkamers | 1 (en 1 apart toilet) |
| Locatie | |
|---|---|
| Ligging | Aan rustige weg Dichtbij openbaar vervoer Nabij school Nabij snelweg Open ligging Platteland Vrij uitzicht |
| Uitrusting | |
|---|---|
| Aantal parkeerplaatsen | 4 |
| Heeft een achtertuin | Ja |
| Heeft een elektriciteitsaansluiting | Ja |
| Tuin aanwezig | Ja |
| Heeft een parkeerplaats | Ja |
| Heeft keuken | Ja |