Verkocht
Verkocht: Prachtige instapklare vrijstaande levensloopbestendige woning!
Zwijning 13, 4051 DJ OchtenBeschrijving
Heerlijk vrijstaand wonen met ruimte, comfort en duurzaamheid!Op een prachtige, brede kavel en gunstig gesitueerd op de hoek van de straat staat deze charmante vrijstaande woning uit 1990 welke vanaf 2020 naar deze tijd is gebracht.
De ligging zorgt niet alleen voor een prettige afstand tot de buren, maar ook voor een ruimtelijk gevoel en veel privacy.
Hier woont u vrij, licht en comfortabel, met alle voorzieningen van het dorp binnen handbereik en tegelijkertijd het gevoel van buitenruimte om u heen.
Bij binnenkomst valt direct de royale hal op.
Dankzij de vide ontstaat er een aangenaam gevoel van hoogte en openheid.
De hal is ruim opgezet en geeft toegang tot de verschillende vertrekken op de begane grond.
Uiteraard is er ook een apart gastentoilet aanwezig – praktisch en comfortabel voor bewoners en bezoekers.
De L-vormige living is royaal bemeten en biedt volop mogelijkheden voor het creëren van verschillende zit- en eethoeken.
Grote raam- en schuifpartijen aan de zuid- en westzijde zorgen voor een prachtige lichtinval gedurende de hele dag.
Hier geniet u van de zon tot in de avonduren.
In de wintermaanden brandt regelmatig de houtkachel, wat niet alleen voor extra sfeer zorgt, maar ook bijdraagt aan aangename energielasten.
De gehele begane grond is voorzien van een plavuizenvloer met comfortabele vloerverwarming.
Dit zorgt voor een aangenaam binnenklimaat én een strakke, moderne uitstraling.
De lichte inbouwkeuken is de afgelopen jaren grotendeels vernieuwd.
Zo zijn veel apparaten vervangen en zijn ook de fronten en het werkblad vernieuwd.
De keuken biedt voldoende werk- en bergruimte en vormt een fijne, centrale plek in huis.
Vanuit de keuken bereikt u de praktische bijkeuken met aansluitingen voor wasmachine en droger.
Hier bevindt zich tevens de achterdeur naar de tuin.
Ideaal voor het dagelijks gebruik en extra bergruimte.
Een van de grote pluspunten van deze woning is het levensloopbestendige karakter.
Op de begane grond bevindt zich een ruime slaapkamer en een vernieuwde badkamer met luxe badmeubel, toilet en royale doucheruimte.
Hierdoor is gelijkvloers wonen mogelijk, wat het huis geschikt maakt voor nu én de toekomst.
Of u deze ruimte nu gebruikt als hoofdslaapkamer, werkkamer of hobbyruimte – de mogelijkheden zijn er.
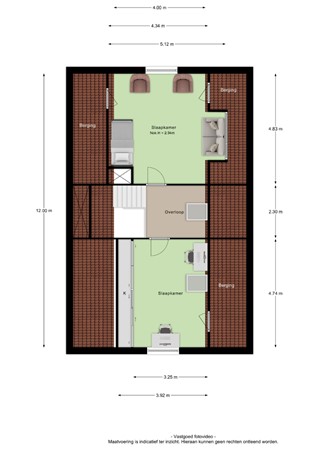
Via een vaste trap bereikt u de verdieping.
Hier bevinden zich twee grote, lichte slaapkamers.
Dankzij de royale maatvoering zijn dit volwaardige kamers, ideaal als kinderkamers, logeerkamers of werkruimte.
De ruime overloop en de omvang van de verdieping bieden bovendien mogelijkheden voor verdere indeling of uitbreiding naar wens.
De aangebouwde garage biedt volop praktische ruimte voor het stallen van een auto, fietsen of het inrichten van een werkplek.
Daarnaast is er nog een separate berging aanwezig.
Dit maakt de woning niet alleen comfortabel, maar ook bijzonder functioneel.
De oprit voor de garage heeft plaats voor meerdere auto’s.
De tuin is gelegen op het zuidwesten en biedt veel privacy.
Dankzij de gunstige ligging geniet u hier van de middag- en avondzon. Het is een heerlijke plek om te ontspannen, te tuinieren of lange zomeravonden door te brengen met familie en vrienden.
De brede kavel en de hoekligging versterken het gevoel van vrijheid en ruimte rondom de woning.
In 2024 zijn maar liefst 18 zonnepanelen (435 Wp per paneel) geplaatst op de zuidzijde van het dak.
In combinatie met de houtkachel en de goede isolatie resulteert dit in een woning met energielabel A en prettige maandlasten.
Comfort en duurzaamheid gaan hier hand in hand.
Bent u bijvoorbeeld momenteel woonachtig in het buitengebied en overweegt u de stap naar het dorp, maar wilt u niet inleveren op ruimte, privacy en buitengevoel?
Of is levensloopbestendig wonen voor u een must?
Dan is deze woning in Ochten absoluut het bekijken waard.
Deze instapklare, vrijstaande woning combineert comfort, modernisering, duurzaamheid en een uitstekende ligging op een breed hoekperceel.
Kortom: een heerlijk ruim, verzorgd en toekomstbestendig huis waar u zó in kunt trekken.
Ziet u zichzelf hier al wonen?
Kenmerken
| Overdracht | |
|---|---|
| Referentienummer | 8087/8885155 |
| Koopsom | € 649.000,- k.k. |
| Status | Verkocht |
| Aangeboden sinds | Zaterdag 28 februari 2026 |
| Laatste wijziging | Woensdag 8 april 2026 |
| Bouw | |
|---|---|
| Type object | Woonhuis, vrijstaande woning, eengezinswoning |
| Soort bouw | Bestaande bouw |
| Bouwjaar | 1990 |
| Type dak | Overige |
| Isolatievormen | Volledig geïsoleerd |
| Oppervlaktes en inhoud | |
|---|---|
| Breedte | 27,5 m. |
| Lengte | 17 m. |
| Perceeloppervlakte | 465 m² |
| Woonoppervlakte | 141 m² |
| Inhoud | 562 m³ |
| Tuinoppervlakte | 188 m² |
| Indeling | |
|---|---|
| Aantal bouwlagen | 2 |
| Aantal kamers | 4 (waarvan 3 slaapkamers) |
| Aantal badkamers | 1 (en 1 apart toilet) |
| Locatie | |
|---|---|
| Ligging | Aan rustige weg Beschutte ligging Dichtbij openbaar vervoer District Nabij school Nabij snelweg |
| Uitrusting | |
|---|---|
| Aantal parkeerplaatsen | 2 |
| Heeft een achtertuin | Ja |
| Heeft een elektriciteitsaansluiting | Ja |
| Tuin aanwezig | Ja |
| Heeft een garage | Ja |
| Heeft een parkeerplaats | Ja |
| Heeft ventilatie | Ja |
| Heeft keuken | Ja |